Audiencia Pública del PAI "Colinas del Mar” se realizará el miércoles 8 en Piriápolis
- Nov 01 2023
La Intendencia de Maldonado convoca a la instancia que se desarrollará a las 16.00 horas en la Casa de la Cultura de calle Santos Negro esquina Dr. Héctor Barrios.
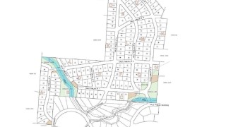
El proyecto fue presentado por José Rodríguez y otros comprendiendo a los padrones rurales Nº 31960, 31969 y 31970 de la 3ª sección catastral, Punta Colorada, del departamento de Maldonado.
El área en cuestión se ubica en el kilómetro 3,500 del Camino de los Arrayanes, vía que conecta la Ruta Interbalnearia con la ciudad de Piriápolis por el acceso Este.
Se plantea desarrollar un emprendimiento de fraccionamiento de tres padrones rurales -total de 20 hectáreas- en 40 lotes urbanos de promedio 4000 metros cuadrados para vivienda turística.
El Programa de Actuación Integrada (PAI) es un instrumento de Ordenamiento Territorial que permite transformar un sector de suelo categorizado como rural potencialmente transformable (SRPT) a un suelo categorizado como urbano (SU) o suburbano (SS) conforme lo dispuesto en el artículo 21 de la Ley de Ordenamiento Territorial y Desarrollo Sostenible.
Las presentaciones orales que se realicen durante la Audiencia contarán con un tiempo límite de 5 minutos, el que podrá prorrogarse por 3 minutos adicionales y deberán inscribirse en la media hora previa.
Las instituciones u organizaciones contarán con un tiempo límite de 20 minutos.
Estas presentaciones deberán coordinarse con la Dirección General de Urbanismo por el teléfono 42225007 hasta el día hábil anterior al de la Audiencia Pública en horario de 9:15 a 14:45.
En archivo adjunto se puede acceder a la resolución de la IDM:












